配電箱(柜)適用于施工現場及戶外臨時用電,應滿足“三級配電二級漏保、一機一閘一漏一箱”配電及保護的使用要求。配電箱(柜)、開關箱的材質選用、制作工藝、箱內電氣元件的選擇、配置應符合國家相關標準,產品應通過CCC認證。配電箱(柜)的殼體采用冷軋鋼板制作,防雨、防塵、戶外型,采用鋼板厚度符合標準要求,經久耐用。
配電箱(柜)、開關箱應分設N線、PE線端子板,進出線必須通過端子板做可靠連接。N線端子板必須與金屬電器安裝板絕緣;PE線端子板必須與金屬電器安裝板做電氣連接。進出線中的N線必須通過N線端子板連接;PE線必須通過PE線端子板連接。PE線與端子板連接必須采用電氣連接,電氣連接點的數量應比箱體內回路數量多2個,1個為PE線進箱體的連接點,1個為重復接地的連接點。
內設400A-630A具有隔離功能的DZ20型透明塑殼斷路器作為主開關,分路設置4-8路采用具有隔離功能的DZ20系列160A-250A透明塑殼斷路器,配備DZ20L(DZ15L)透明漏電開關或LBM-1系列作為漏電保護裝置,使之具有欠壓、過載、短路、漏電、斷相保護功能,同時配備電度表、電壓表、電流表、兩組電流互感器。漏電保護裝置的額定漏電動作電流與額定漏電動作時間的乘積不大于30mA.S。最好選用額定漏電動作電流75-150mA,額定漏電動作時間大于0.1S小于等于0.2S,其動作時間為延時動作型。

總配電柜示意圖

總配電柜端子板接點圖
總配電柜柜門電氣連接點圖
四回路配電柜電氣系統圖

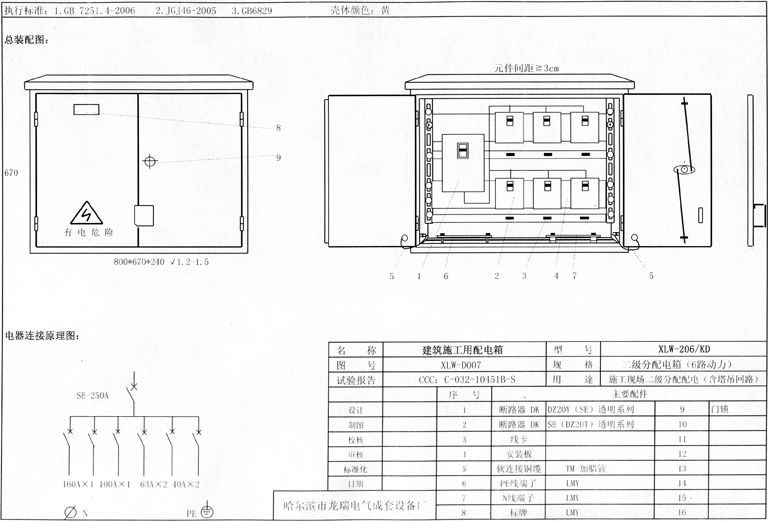
六回路配電柜電氣系統圖

八回路配電柜電氣系統圖
1、含照明回路分配電箱 (動力回路與照明回路分路配電)
內設200A-250A具有隔離功能的DZ20系列透明塑殼斷路器作為主開關(與總配電箱分路設置斷路器相適應);采用DZ20或 KDM-1型透明塑殼斷路器作為動力分路、照明分路控制開關;各配電回路采用DZ20或KDM-1透明塑殼斷路器作為控制開關;PE線連線螺栓、N線接線螺栓根據實際需要配置。

分配電箱示意圖

分配電箱N線端子板接點圖
分配電箱PE線端子板接點圖

分配電箱電氣系統圖

含塔吊回路分配電箱示意圖
(端子板接點及電氣連接點圖同上)

含塔吊回路分配電箱系統圖
2、不含照明回路分配電箱
6-8回路分配電箱示意圖
6回路分配電箱含塔吊回路
(端子板接點及電氣連接點圖同上)

8回路分配電箱系統圖

6回路含塔吊回路分配電箱系統圖
1、地泵等大型設備動力開關箱
內設KDM1或DZ20(160A以上380V)系列透明塑殼斷路器作為控制開關,配置DZ20L系列透明漏電斷路器或LBM-1系列漏電斷路器;PE線端子排為3個接線螺栓。
地泵等大型設備開關箱示意圖

地泵等大型設備電氣系統圖
2、塔式起重機等設備動力開關箱
內設KDM1或DZ20(160A以上380V)系列透明塑殼斷路器作為控制開關,配置DZ20L系列透明漏電斷路器或LBM-1系列漏電斷路器;PE線端子排為3個接線螺栓。
塔式起重機等設備動力開關箱示意圖
塔式起重機等動力設備開關箱系統圖
3、3.0KW以下用電設備開關箱
內設DZ20(20-40A、380V)或SE,KDMI系列透明塑殼斷路器作為控制開關,配置DZ15LE(20-40A)或LBM1系列透明漏電斷路器,PE線端子排為4個接線螺栓。

40A以下動力開關箱示意圖

動力開關箱端子接點及電氣接點連接圖

40A以下設備用電開關箱電氣系統圖
4、5.5KW以上用電設備開關箱
根據所控制設備額定容量選擇控制開關及漏電斷路器。控制開關為DZ20(SE或KDM1)系列透明塑殼斷路器,漏電斷路器為DZ15L系列透明系列漏電斷路器;PE線接線螺栓為3個。

5.5KW以上設備開關箱示意圖

5.5KW以上設備開關箱電氣系統圖
5、照明開關箱
內設KDM1—T/2(20-40A)斷路器,配置DZ15L—20-40/290漏電斷路器,PE線螺栓為3個。

照明開關箱示意圖
照明開關箱電氣系統圖
注:開關箱中漏電斷路器必須選擇額定漏電動作電流不大于30mA,額定漏電動作時間不大于0.1S,電流速斷、電磁式電動機保用產品。
總配電箱中漏電斷路器應選用配電保護用產品。
(一)配電柜正面的操作通道寬度,單列布置或雙列背對背布置不小于1.5m,雙列面對面布置不小于2m。
(二)配電柜后面的維護通道寬度,單列布置或雙列面對面布置不小于0.8m,雙列背對背布置不小于1.5m,個別地點有建筑物結構凸出的地方,則此點通道寬度可減少0.2m。
(三)配電柜側面的維護通道寬度不小于1m。
(四)配電室的棚頂與地面的距離不低于3m。
配電箱架設應符合下列要求
(一)固定式配電箱、開關箱箱體中心點與地面垂直距離1.4~1.6m。移動式箱體與地面垂直距離0.8~1.6m。配電箱、開關箱應裝設在堅固、穩定的支架上。
(二)配電箱、開關箱在建筑物墜落半徑或塔吊臂旋轉半徑內的必須做雙層防護棚,并采取隔離措施。
(一)施工現場操作電工必須經過按國家現行標準考核合格后,持證上崗工作。
(二)各類用電人員必須通過相關安全教育培訓和技術交底,掌握安全用電基本知識和所用設備的性能,考核合格后方可上崗工作。
(三)安裝、巡檢、維修或拆除臨時用電設備和線路,必須由電工完成,并應有人監護。
(四)臨時用電組織設計規定:
1)施工現場臨時用電設備在5臺及以上或設備總容量在50kW及以上的,應編制用電組織設計;否則應制定安全用電和電氣防火措施。
2)裝飾裝修工程或其他特殊施工階段,應補充編制單項施工用電方案。
(五)臨時用電組織設計及變更必須由電氣工程技術人員編制,相關部門審核,并經具有法人資格企業的技術負責人批準,經現場監理簽認后實施。
(六)臨時用電工程必須經編制、審核、批準部門和使用單位共同驗收,合格后方可投入使用。
(七)臨時用電工程定期檢查應按分部、分項工程進行,對安全隱患必須及時處理,并應履行復查驗收手續。
(八)室外220V燈具距地面不得低于3m,室內不得低于2.5m。
《施工現場臨時用電安全技術規范》JGJ46-2005的強制性條文:
(一)施工現場臨時用電工程電源中性點直接接地的220/380V三相四線制低壓電力系統,必須符合下列規定:采用三級配電系統;采用TN-S接零保護系統;采用二級漏電保護系統。
(二)當采用專用變壓器、TN-S接零保護供電系統的施工現場,電氣設備的金屬外殼必須與保護零線連接。保護零線應由工作接地線、配電室(總配電箱)電源側零線或總漏電保 護器電源側零線處引出。
(三)當施工現場與外電線路共用同一供電系統時,電氣設備的接地、接零保護應與原系統保持一致,不得一部分設備做保護接零,另一部分設備做保護接地。
(四)TN-S系統中的保護零線除必須在配電室或總配電箱處做重復接地外,還必須在配電系統的中間處和末端處做重復接地。
(五)配電柜應裝設電源隔離開關及短路、過載、漏電保護器。電源隔離開關分斷時,應有明顯可見的分斷點。
(六)配電箱的電器安裝板上必須分設N線端子板和PE線端子板。N線端子板必須與金 屬電器安裝板絕緣;PE線端子板必須與金屬電器安裝板做電氣連接。
(七)配電箱、開關箱的電源進線端嚴禁采用插頭和插座做活動連接。
(八)對混凝土攪拌機、鋼筋加工機械、木工機械、盾構機械等設備進行清理、檢查、維修時,必須將其開關箱分閘斷電,呈現可見電源分斷點,并關門上鎖。
(九)下列特殊場所應使用安全特低電壓照明器:
1)隧道、人防工程、高溫、有導電灰塵、比較潮濕或燈具離地面高度低于2.5m等場所的照明,電源電壓不應大于36V;
2)潮濕和易觸及帶電體場所的照明,電源電壓不得大于24V;
3)特別潮濕場所、導電良好的地面、鍋爐或金屬容器內的照明,電源電壓不得大于12V。
(十)照明變壓器必須使用雙繞組型安全隔離變壓器,嚴禁使用自耦變壓器。
(十一)對夜間影響飛機或車輛通行的在建工程及機械設備,必須設置醒目的紅色信號燈,其電源應設在施工現場總電源開關的前側,并應設置外電線路停止供電時的應急自備電源。